Pháp lý Vinhomes Pearl Bay được hoàn thiện theo chuẩn dự án quy mô lớn, bao trùm đầy đủ hồ sơ từ giai đoạn chuẩn bị đầu tư, phê duyệt quy hoạch đến triển khai xây dựng theo đúng quy định pháp luật. Nhờ đó, khách hàng an tâm về tính hợp pháp, giao dịch minh bạch và quyền lợi hợp đồng được bảo vệ rõ ràng. Đồng thời, pháp lý đầy đủ giúp tài sản thuận lợi chuyển nhượng, thế chấp ngân hàng và khai thác kinh doanh dài hạn.

Hồ sơ pháp lý Vinhomes Pearl Bay Nha Trang có gì?
Hệ thống pháp lý Vinhomes Pearl Bay Nha Trang được hoàn thiện đồng bộ, minh bạch theo chuẩn dự án quy mô lớn, đáp ứng đầy đủ điều kiện triển khai, mở bán và vận hành lâu dài. Cụ thể, các hồ sơ pháp lý quan trọng đã hoàn tất gồm:
Quyết định cho phép đầu tư & xác lập chủ đầu tư
Dự án Vinhomes Pearl Bay đã được cơ quan nhà nước có thẩm quyền phê duyệt, xác nhận Vinhomes (thuộc Vingroup) là chủ đầu tư hợp pháp, đủ điều kiện triển khai dự án theo đúng quy định pháp luật. Đây là cơ sở pháp lý đầu tiên khẳng định tính chính danh của dự án trên thị trường.

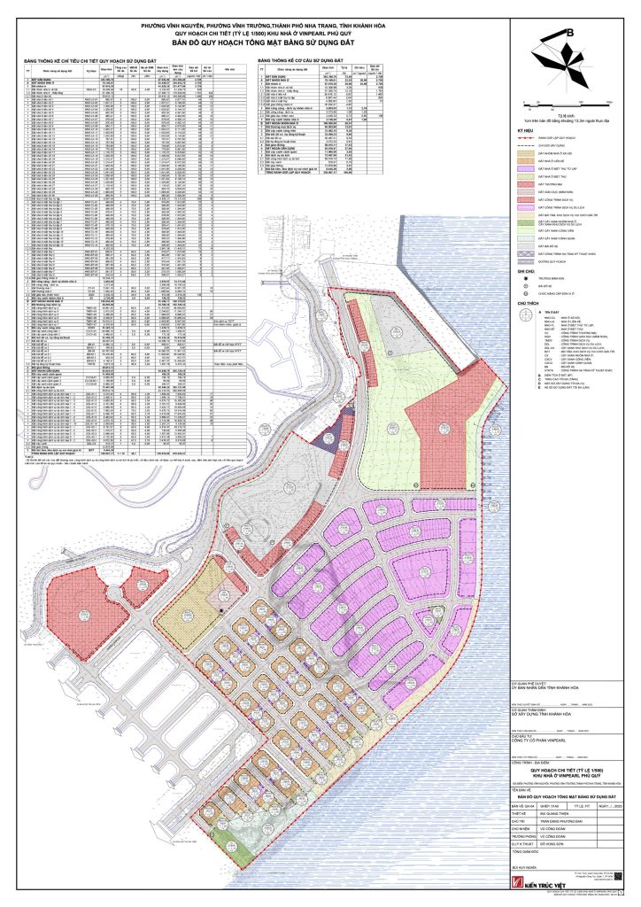
Quy hoạch chi tiết tỷ lệ 1/500
Quy hoạch chi tiết 1/500 đã được UBND tỉnh Khánh Hòa phê duyệt và chấp thuận điều chỉnh vào tháng 7/2025, xác định rõ ranh giới khu đất, cơ cấu phân khu chức năng (nghỉ dưỡng – thương mại – tiện ích), cùng hệ thống giao thông, hạ tầng kỹ thuật và không gian cảnh quan. Đây là căn cứ pháp lý cốt lõi để triển khai xây dựng, cấp phép và quản lý vận hành.
Giấy chứng nhận quyền sử dụng và khai thác đất
Pháp lý Vinhomes Pearl Bay đã hoàn tất thủ tục giao đất/thuê đất và được cấp giấy chứng nhận quyền sử dụng đất cho toàn bộ dự án, làm rõ thời hạn sử dụng đất theo từng loại hình và mục đích sử dụng (đất ở, đất thương mại – dịch vụ, đất công cộng).
Tham khảo thêm: Mặt bằng Vinhomes Pearl Bay

Hồ sơ đánh giá tác động môi trường (ĐTM)
Báo cáo ĐTM đã được Bộ Tài nguyên và Môi trường phê duyệt, đảm bảo tuân thủ các tiêu chuẩn bảo vệ môi trường ven biển, kiểm soát tác động sinh thái trong quá trình xây dựng – vận hành và định hướng phát triển bền vững theo xu thế ESG.
Giấy phép khởi công & thi công xây dựng
Sau khi hoàn thiện các thủ tục nền tảng, dự án đã được cấp phép khởi công và thi công, cho phép triển khai đồng bộ hạ tầng kỹ thuật, công trình nhà ở – nghỉ dưỡng và các hạng mục tiện ích theo quy hoạch được duyệt.
Chứng nhận an toàn phòng cháy chữa cháy (PCCC)
Hệ thống PCCC được thẩm duyệt theo tiêu chuẩn quốc gia, đảm bảo an toàn cho công trình và cư dân trong suốt quá trình sử dụng và vận hành.

Hồ sơ bảo lãnh tài chính & hỗ trợ vay vốn
Dự án có bảo lãnh tài chính từ các ngân hàng uy tín, đảm bảo nghĩa vụ của chủ đầu tư với khách hàng, đồng thời hỗ trợ vay vốn mua sản phẩm với điều kiện minh bạch và thuận lợi.
Nhờ hoàn thiện đầy đủ các hạng mục trên, pháp lý Vinhomes Pearl Bay Nha Trang được đánh giá là rõ ràng, chặt chẽ và an toàn, tạo nền tảng vững chắc cho khách hàng ở thực lẫn nhà đầu tư dài hạn.
Câu Hỏi Thường Gặp Về Pháp Lý Vinhomes Pearl Bay
Có. Dự án đã hoàn tất toàn bộ hồ sơ pháp lý từ quyết định đầu tư, quy hoạch 1/500, giấy phép xây dựng, đánh giá môi trường đến chứng nhận PCCC. Đặc biệt, 88 căn đầu tiên đã hoàn thiện và nghiệm thu, chờ cấp sổ.
Có. Căn TMDV và DVDL vẫn được cấp Giấy chứng nhận quyền sử dụng đất, chỉ khác về thời hạn sở hữu (50 năm thay vì lâu dài).
Với uy tín Vingroup và hồ sơ pháp lý đã hoàn chỉnh, rủi ro pháp lý ở mức tối thiểu. Tuy nhiên, khách hàng vẫn nên tự kiểm tra và đọc kỹ hợp đồng trước khi ký.
Quy hoạch 1/500 đã được UBND tỉnh Khánh Hòa phê duyệt và điều chỉnh lần cuối vào 7/2025. Khả năng thay đổi lớn trong tương lai là rất thấp.
📞 Liên hệ ngay để được tư vấn chi tiết về Pháp lý Vinhomes Pearl Bay. Gọi 0901 30 30 92 để nhận thông tin pháp lý minh bạch, cập nhật mới nhất và hỗ trợ chuyên sâu từ đội ngũ tư vấn dự án.
