Layout biệt thự Vinhomes Green Paradise Cần Giờ nổi bật với triết lý thiết kế “Green Living – Smart Design”, trong đó yếu tố không gian xanh và công năng thông minh được đặt lên hàng đầu. Điểm đặc biệt là tỷ lệ diện tích công năng trên mỗi tầng được tính toán khoa học, đảm bảo tối đa 30% diện tích dành riêng cho ban công, sân vườn và hệ thống cây xanh – con số vượt xa mức trung bình thị trường 15-20%.

Layout Biệt Thự The Haven Bay – Vịnh Tiên
Layout Biệt Thư The Haven Bay – Vịnh Tiên là phân khúc cao cấp nhất tại Vinhomes Green Paradise Cần Giờ với diện tích 455-462m², được thiết kế theo phong cách kiến trúc tân cổ điển châu Âu kết hợp hiện đại. Điểm nổi bật vượt trội là 100% các đơn vị sở hữu view trực diện hồ nước mặn nhân tạo 443ha, tạo nên giá trị khan hiếm độc tôn.




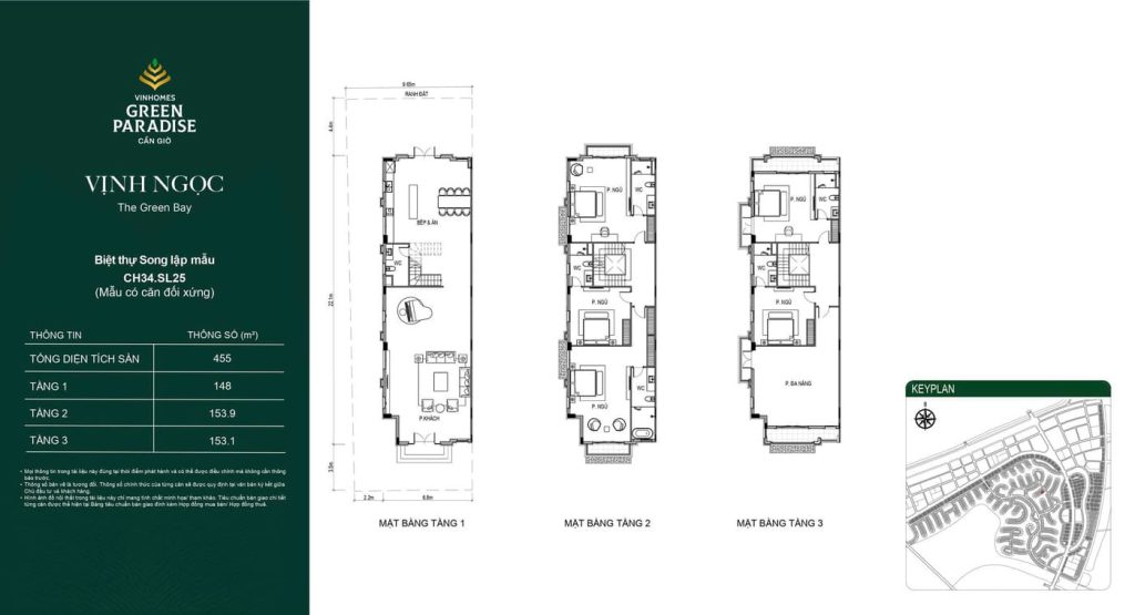
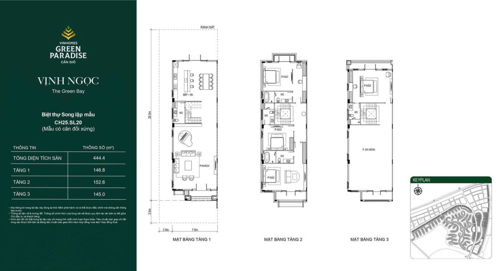
Layout Biệt Thự The Green Bay – Vịnh Ngọc
Layout Biệt Thự The Green Bay – Vịnh Ngọc nổi bật với hệ thống đa dạng nhất tại Vinhomes Green Paradise Cần Giờ, bao gồm 6 mẫu song lập (293-455m²) và 2 mẫu đơn lập cao cấp (473-559m²), được thiết kế theo phong cách kiến trúc hiện đại tối giản hòa quyện thiên nhiên nhiệt đới.

Layout Biệt Thự Song Lập Cao Cấp Vịnh Ngọc
Layout Biệt Thự Song Lập Vịnh Ngọc gồm 6 mẫu thiết kế đa dạng từ 293m² đến 455m², trong đó mẫu 455m² và 444.4m² là hai thiết kế được ưa chuộng nhất với diện tích tầng 1 rộng 146-148m², lý tưởng cho gia đình đa thế hệ.
Xem thêm: Giá Vinhomes Green Paradise Cần Giờ




Dòng song lập là hệ thống cửa sổ và ban công thiết kế lệch tầng, đảm bảo riêng tư giữa hai căn liền kề nhưng vẫn tối đa hóa view và ánh sáng tự nhiên, với tầng 1 bố trí bếp ăn 15-20m², phòng khách 30-35m² và 1 phòng ngủ phụ tiện lợi.
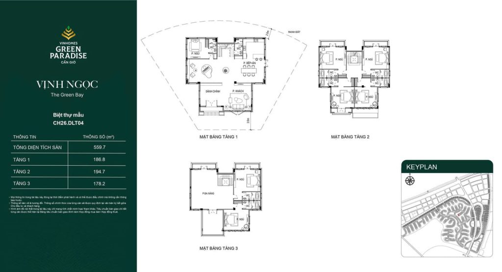
Layout Biệt Thự Đơn Lập Vịnh Ngọc
Layout Biệt Thự Đơn Lập Vịnh Ngọc gồm 2 mẫu cao cấp nhất là 473.1m² và 559.7m², trong đó mẫu 559.7m² với cấu trúc (186.8m² + 194.7m² + 178.2m²) sở hữu thiết kế ấn tượng với sảnh chính rộng 25m² tầng 1, khu bếp ăn tách biệt và 1 phòng ngủ master.

Tầng 2 với diện tích 194.7m² thiết kế 4 phòng ngủ lớn có WC riêng và ban công view hồ, còn tầng 3 là không gian đa năng 178m² có thể biến thành phòng giải trí, rạp chiếu phim gia đình hoặc phòng gym cao cấp, mang lại ROI 14-17%/năm.

Phân Tích Lợi Thế Cạnh Tranh Của Layout Vinhomes Green Paradise
Layout Vinhomes Green Paradise Cần Giờ sở hữu những lợi thế cạnh tranh vượt trội so với các dự án nghỉ dưỡng cao cấp cùng phân khúc, tập trung vào 3 yếu tố cốt lõi: hiệu suất diện tích, không gian xanh và thiết kế bền vững. Những ưu điểm này không chỉ nâng cao chất lượng sống mà còn tối ưu hóa khả năng sinh lời, mang lại ROI cao hơn 3-5% so với mức trung bình thị trường.
Layout Vinhomes Cần Giờ Hiệu Suất Diện Tích Vượt Trội
Layout biệt thư Vinhomes Green Paradise Cần Giờ đạt tỷ lệ diện tích sử dụng 85-90%, cao hơn trung bình thị trường 10-15%. Với biệt thự 455m², diện tích sử dụng thực tế đạt 386-410m² so với 340-365m² ở dự án thông thường. Điều này mang lại lợi ích gia tăng 40-45m² không gian sống, tương đương tiết kiệm 15-20% chi phí/m² so với việc mua diện tích lớn hơn.

Layout Vinhomes Cần Giờ có Không Gian Xanh Riêng Tư
Ban công và sân vườn chiếm 25-30% diện tích, cao hơn chuẩn thị trường 15-20%. Theo nghiên cứu của CBRE, bất động sản có không gian xanh riêng tăng giá nhanh hơn 18-22% và dễ cho thuê hơn 35%, tạo lợi thế cạnh tranh vượt trội.
Layout Vinhomes Cần Giờ Thiết Kế Bền Vững Tiết Kiệm Vận Hành
Layout áp dụng nguyên tắc thông gió tự nhiên giảm 30-35% chi phí điều hòa, ánh sáng tự nhiên tối đa tiết kiệm 25-30% điện chiếu sáng, và khả năng lắp điện mặt trời thu hồi vốn trong 5-6 năm. Tổng cộng tiết kiệm 30-40% chi phí vận hành hàng năm, gia tăng 3-5% ROI thuần khi cho thuê.
Liên hệ ngay: 0901.303.092 để được chuyên gia phân tích chi tiết vị trí đẹp nhất, giá tốt nhất và lộ trình đầu tư tối ưu cho bạn!
Xem thêm:
- Biệt thự Vinhomes Green Paradise Cần Giờ
- Nhà phố Vinhomes Green Paradise Cần Giờ
- Căn hộ Vinhomes Green Paradise Cần Giờ
