Mặt bằng Vinpearl Phú Quý được quy hoạch bài bản trên tổng diện tích rộng lớn tại Bãi Dài – Nha Trang, mang đến một “đô thị nghỉ dưỡng trong lòng thành phố biển”. Với tầm nhìn chiến lược, dự án được bố trí không gian sống , thương mại , nghỉ dưỡng hài hòa, vừa tối ưu công năng vừa tạo nên giá trị bền vững cho cư dân và nhà đầu tư.

Mặt bằng tổng thể Vinpearl Phú Quý
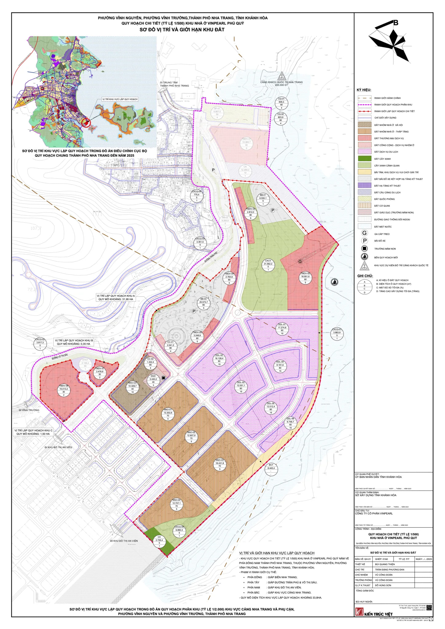
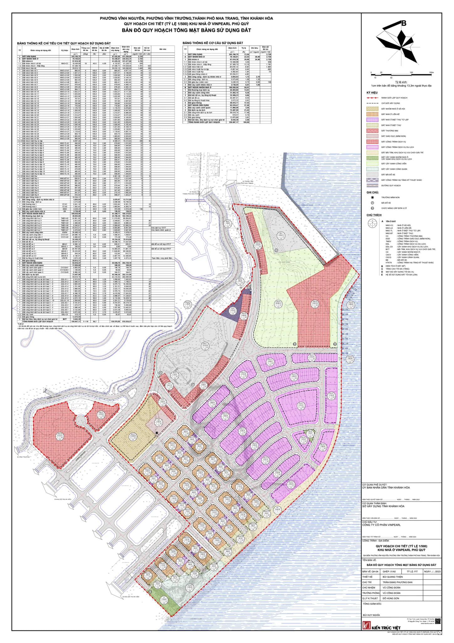
Vinpearl Phú Quý được quy hoạch trên diện tích 33,8 ha, kết hợp hài hòa giữa đất ở, đất thương mại , dịch vụ và không gian cây xanh ven biển. Mặt bằng tổng thể thể hiện rõ định hướng phát triển đô thị nghỉ dưỡng , thương mại du lịch đồng bộ, đáp ứng đầy đủ nhu cầu an cư, kinh doanh và giải trí.


Các loại hình sản phẩm Vinpearl Phú Quý
Nhà ở xã hội
- Dành cho người trẻ, gia đình có thu nhập trung bình – thấp.
- Vị trí thuận tiện gần công viên, trường học, tiện ích nội khu.
- Thiết kế tối ưu diện tích, đầy đủ công năng, giá trị sống vừa tầm.
Liền kề thương mại
- Cấu trúc 3–5 tầng, mặt tiền rộng, thuận lợi mở cửa hàng, văn phòng hoặc cho thuê.
- Tọa lạc trên trục đường chính nội khu, đón lưu lượng khách dồi dào.
- Khả năng khai thác dòng tiền ổn định, thanh khoản cao.
Biệt thự ven biển
- Vị trí độc bản sát biển, view trực diện vịnh Nha Trang và bến du thuyền.
- Loại hình đơn lập & song lập, diện tích linh hoạt từ 200 – 400m².
- Sân vườn riêng, hồ bơi, lối dạo biển đảm bảo sự riêng tư tuyệt đối.
- Có thể khai thác vận hành trong hệ thống nghỉ dưỡng 5 sao
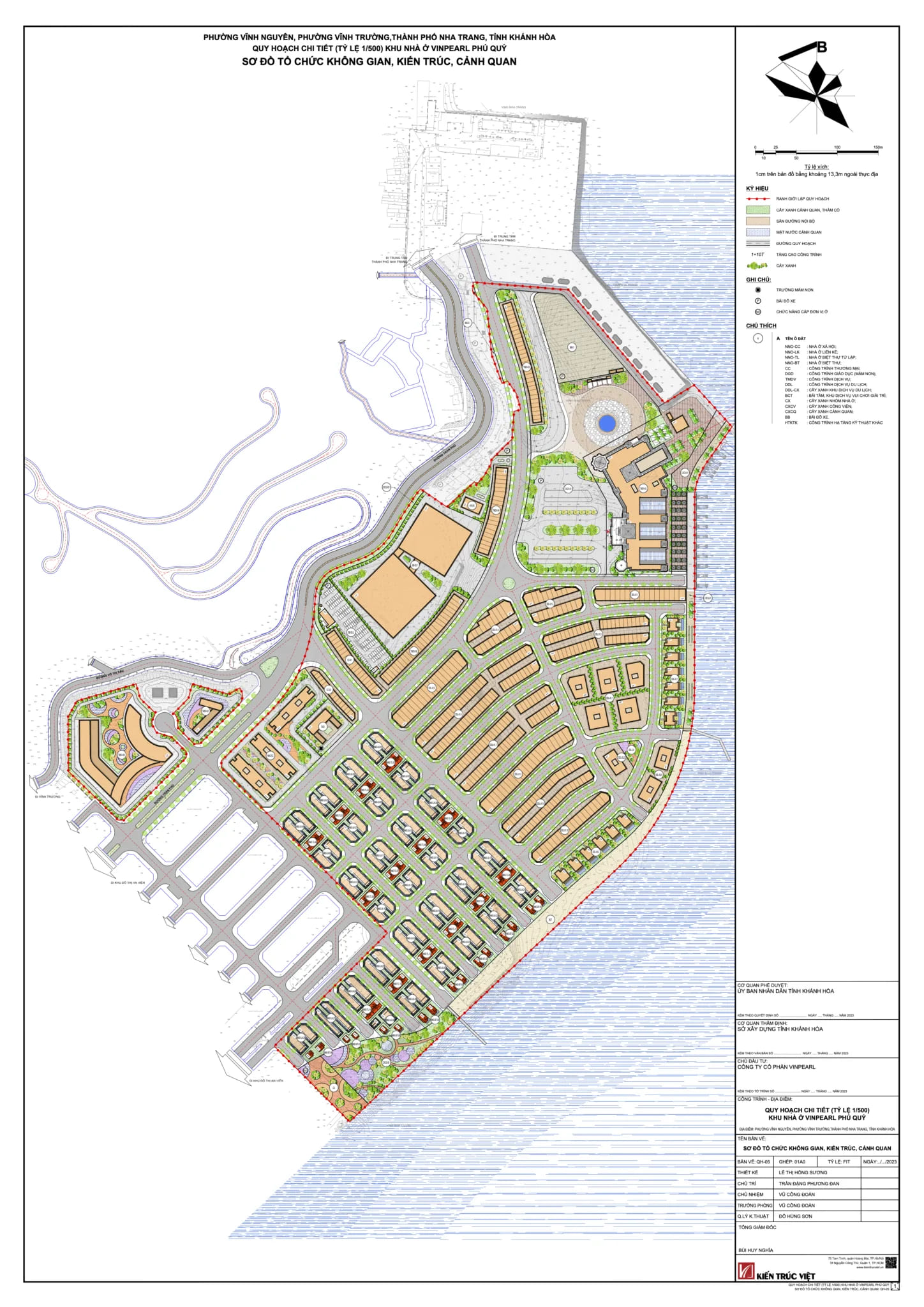
Mặt bằng tiện ích Vinpearl Phú Quý
Bên cạnh thiết kế mặt bằng sản phẩm tối ưu, Vinpearl Phú Quý còn ghi điểm mạnh mẽ nhờ hệ thống tiện ích Vinpearl Phú Qúy bố trí chiến lược trong tổng thể quy hoạch mang lại sự kết nối liền mạch giữa nghỉ dưỡng, giải trí, vận động và mua sắm.


Công viên ven biển & Quảng trường trung tâm
- Đóng vai trò “trái tim” của toàn bộ dự án.
- Diện tích lớn, là không gian tổ chức sự kiện – giao lưu – thư giãn.
- Thiết kế đài phun nước, sân khấu ngoài trời, café view biển… tạo nên không gian vừa lãng mạn vừa sôi động.
Bến du thuyền & đường dạo bộ ven biển
- Nằm dọc theo ranh biển phía Đông là “mặt tiền biển” của dự án.
- Có đường kết nối nội bộ từ khu biệt thự cao cấp đến bến thuyền.
- Tích hợp lối dạo bộ ven biển, mang lại trải nghiệm “sống giữa resort”.
Trung tâm thương mại Vincom & khu giải trí VinWonders
- Quy hoạch tại vị trí gần vòng xoay trung tâm, thuận tiện tiếp cận từ mọi phân khu.
- Hình thành chuỗi tiện ích “mua sắm, ẩm thực, vui chơi ,giải trí” trọn gói.
- Đáp ứng nhu cầu từ cư dân đến khách du lịch.
Khu vui chơi trẻ em & thể thao ngoài trời
- Được bố trí đan xen trong các công viên nhỏ nội khu.
- Bao gồm: sân cầu lông, sân bóng rổ, khu tập gym, khu leo núi nhân tạo,…
- Khuyến khích vận động, kết nối gia đình và nâng cao chất lượng sống mỗi ngày.
Vinpearl Phú Quý siêu phẩm ven biển Trần Phú, Nha Trang, nơi an cư, nghỉ dưỡng , đầu tư hội tụ trong một. Với số lượng sản phẩm giới hạn, đây là cơ hội hiếm hoi để sở hữu bất động sản vĩnh cửu bên vịnh biển đẹp nhất Việt Nam. Liên hệ ngay hotline : 0901303092 để giữ suất ưu tiên và nhận chính sách hấp dẫn hôm nay
